近日和家人去看了《流浪地球》,确实是一个非常精彩的电影,首先向所有主创人员,包括原著、导演、演员等等致敬,非常了不起,非常精彩!
电影里面出现了一个非常震撼的情境,整个上海都被400多米的冰层覆盖了(图1)。CN171-11小分队一行穿梭在厚厚的冰层裂隙中,遇到险情。紧急情况下,他们通过某高层建筑的电梯井,成功从冰层裂隙底部中逃离到冰盖顶部。电梯这段戏因为牵涉到“爷爷”韩子昂的不幸牺牲,在整个剧情中交代了很长时间。
而作为一名在国家自然科学基金“重大工程的动力灾变”重大研究计划中工作了8年的成员,自然一眼就认出了这个逃生的高层建筑就是目前中国最高的“上海中心”(这里向同济大学设计院上海中心设计团队致敬,上海中心在几十年后地球末日里依然巍然屹立)。
图1 《流浪地球》中的上海
根据剧情设定,在刹车阶段(地球停止自转阶段),巨大的海啸淹没了陆地(“妹妹”韩朵朵此时在上海被“爷爷”收留)。而后地球远离太阳,气温下降,海水冻成了冰层。但是,上海中心虽然被冰层紧紧包围(所以锤子要用机关枪来打开出路),但上海中心的电梯筒里面没有冰也没有水哦!!!
也就是说,上海中心在刹车阶段的大洪水中,其电梯筒成功抵御了400多米的水压没有漏水!没有漏水!没有漏水!我想日本三菱电机可以借助这个案例给他家的电梯好好打打广告了。
当然,电梯技术会不断进步,电梯也可以更换,所以也许若干年后电梯就真的防水性能这么好了呢?作为土木工程师,当然我就想到另外一个问题:上海中心的电梯筒,是否能承受400多米这么大的水压力?
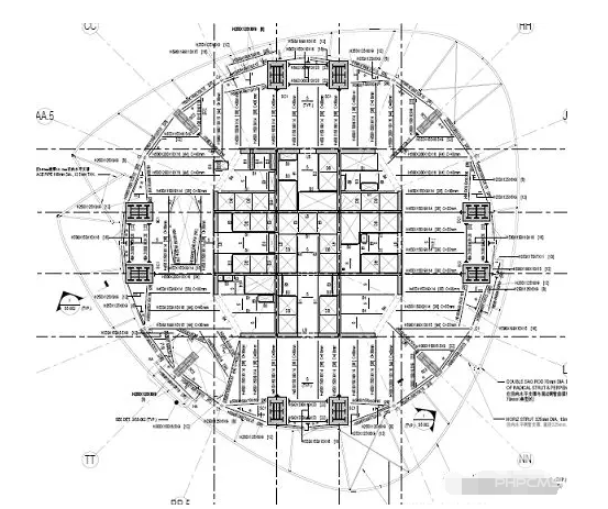
上海中心的电梯井如图2所示,底部为边长大约30m的钢筋混凝土筒体,其最大壁厚为1.2m。
图2 上海中心的电梯井
我想在未来上海中心的使用过程中,这个钢筋混凝土筒大概是不会再变化的了。所以我们认为电影发生时的电梯筒和现在的电梯筒一样。当然,为了更加真实,我们找到了此前课题组建立的上海中心的详细结构模型,进一步考虑外框架以及伸臂桁架等构件对电梯筒的增强作用。
(a) 整体
(b) 局部
图3 上海中心的精细化非线性有限元模型
具体有限元建模策略为“以非线性计算性能良好的大型通用有限元程序MSC.Marc 2007为平台,建立了该超高层建筑的有限元模型。模型中包含的主要单元类型如下:空间梁单元模拟外围次框架、桁架和塔冠等型钢构件以及剪力墙边缘构件中的型钢;分层壳单元模拟核心筒中的剪力墙和连梁;空间杆单元模拟连梁上下铁的纵向钢筋;膜单元模拟楼板;空间杆单元和分层壳组成的组合模型模拟巨型钢骨混凝土柱。”(详见《工程地震灾变模拟:从高层建筑到城市区域》,科学出版社,2015)。
我们把水压力加载在电梯筒外壁(图4),看看计算结果如何。
图4 在电梯筒外壁施加水压力
逐步增加电梯筒外的水压力,看看电梯筒到底能抵抗多大的水压。结果表明,当最大水压力达到1.8MPa(大概是180m水头高度)时,电梯筒就已经达到强度极限,再也顶不住了(图5)。另外在这样的压力下,电梯筒混凝土已经严重开裂(图6),实际上也无法保证密闭阻水了。所以,上海中心的电梯筒是无法抵抗400m的水压力的。
图5 电梯筒荷载-变形曲线
图6 电梯筒开裂区域分布图
当然,这里大家可能还要问一个问题,CN171-11小分队是从冰层裂缝底部开始爬的,但是不一定是从地面啊,也许那里的水头没有400m呢?为了研究这个问题,我们又仔细看了一眼冰层裂缝的画面(图1)。大家可以注意到冰层裂缝的底部在东方明珠下部大球以下,而冰层裂缝顶部在东方明珠上部第二个球以上。根据东方明珠塔的设计数据(图7),不难看出这段冰层的高度也已经远超过了200m。而根据上面的分析结论,上海中心的电梯筒是抵抗不了超过180m的水压力的。所以这里是《流浪地球》中的一个bug,虽然原作刘慈欣先生是华北水利水电学院水电工程系毕业的。
图7 东方明珠塔高度示意图
当然,瑕不掩瑜,《流浪地球》真的是个很不错的电影,推荐大家一定要去看一看。写一部好的科幻作品需要很多科学知识,这个真的不容易。科幻电影的价值,就是启迪想象力,启迪思考,希望未来能看到更多更好的国产科幻作品!
